Der in wenigen Schriftquellen ab dem ausgehenden 8. Jahrhundert belegte karolingische Königs- und vermutlich bereits agilolfingische Herzogshof Ardeoingas/Erding lag im Erdinger Stadtteil Altenerding und ist räumlich von der gleichnamigen wittelsbachischen Gründungsstadt zu unterscheiden. Bei archäologischen Ausgrabungen der Jahre 2010 bis 2018 konnten Überreste des zentralen Hofes aufgedeckt werden. Dabei gelang in exemplarischer Weise die Dokumentation der baulichen Struktur eines karolingerzeitlichen Herren- und Königshofs, dessen Anfänge mindestens bis in die erste Hälfte des 7. Jahrhunderts zurückreichen. Um 660/70 erhielt er eine außergewöhnliche Befestigungsanlage, mit der wohl eine militärische Funktion einherging. Zum Hof gehörte weiter eine für den Raum sehr frühe Kirche (St. Peter in Altenerding) mit Friedhof. Nach Übertragung des Hofes an das Erzbistum Salzburg im Jahre 891 verloren der Hof und die Peterskirche langsam an Bedeutung. Neben den Erkenntnissen zur Gestalt frühmittelalterlicher Herrenhöfe bekräftigt die Befestigung den historisch belegten zentralörtlichen Charakter des frühen Erding (Gerichtsort; kirchlicher Mittelpunkt) und weist auf einen bisher nicht näher bekannten Konflikthintergrund im bayerischen Herzogtum des 7. Jahrhunderts hin.
Erding und der Raum an der Sempt im frühen Mittelalter

Der Erdinger Raum ist im frühen Mittelalter im Wesentlichen durch ältere, römische Strukturen geprägt. Zwei West-Ost verlaufende Fernstraßen, die jeweils Augsburg mit Passau bzw. Salzburg verbanden, grenzen das Gebiet im Norden und Süden ein. Die Sempt und eine parallellaufende archäologisch gut belegte römische Straße verbinden diese beiden Fernwege von Nord nach Süd. Entlang der Sempt, mit Erding als Mittelpunkt, ist eine deutliche Häufung von Siedlungsspuren von der römischen Kaiserzeit bis ins Mittelalter zu beobachten. Die Bedeutung dieses Siedlungsraumes – vor allem im frühen Mittelalter – wird durch das 1965 dort entdeckte, sog. baiuwarische Reihengräberfeld von Altenerding-Klettham unterstrichen, das mit seinen etwa 2.400 Bestattungen das größte bekannte derartige Gräberfeld in ganz Süddeutschland ist. Eine zweite Nord-Süd verlaufende Achse dichter Besiedlung ist westlich an der Terrassenkante hin zum Erdinger Moos auszumachen, an welcher in Oberding (750: villa Deoinga) und Neuching (771/72: Synode von Niuhinga) wie in Altenerding Fiskalgut belegt ist.
Der Königshof Erding in den Schriftquellen
Erding erscheint zum ersten Mal Ende des 8. Jahrhunderts in der Überlieferung, kurz nachdem Karl der Große (reg. 768-814, ab 800 Kaiser) Herzog Tassilo III. (reg. 748-788, † nach 794) entmachtet und das Herzogtum der Bayern (wieder) in das Frankenreich integriert hatte. In den Freisinger Traditionen (Nr. 232) wird der Name der Siedlung im Zuge eines Rechtsstreites genannt. In Anwesenheit von Königsboten (missi domni regis) fand in loco qui dicitur Ardeoingas ("in dem Ort, welcher Ardeoingas heißt") ein Gerichtstag statt, bei welchem Streitigkeiten um Besitztümer im nahegelegenen Wörth ausgehandelt wurden. Dieses Ereignis ist durch den Kontext und die Nennung Karls als König, d. h. vor der Kaiserkrönung, zwischen 788 und 800 zu datieren. Da die Abhaltung eines solchen Gerichtstags eine gewisse Infrastruktur voraussetzt, ist anzunehmen, dass in Erding eine villa publica bestand.
Dass dort tatsächlich Fiskalgut in Form eines Königshofes vorhanden war, bestätigt eine weitere Schriftquelle aus dem Jahr 891 (MG DD Arnulf 87). Damals übertrug König Arnulf von Kärnten (reg. 887-896) den "Hof in Erding am Ufer des Flüsschens Sempt" (curtem Ardienga…in ripa fluvioli, qui vulgo Semita vocatur) an die bischöfliche Kirche in Salzburg, zu gleichem Recht und mit allem Zubehör, wie ihn seine verstorbene Mutter Liutswind zum Witwengut gehabt hatte. Einem Besitzverzeichnis des Salzburger Domkapitels aus der ersten Hälfte des 12. Jahrhunderts ist der Umfang des Schenkungsgutes zu entnehmen. Demnach bezogen die Domherren in Erding Einkünfte von fünf Höfen, 40 Huben und zwei Mühlen (SUB I, 600), was zeigt, dass der Organisationsrahmen des Königshofes weit über den in der Semptschleife in Altenerding gelegenen Zentralhof hinausreichte.
Mit einiger Wahrscheinlichkeit kann angenommen werden, dass der für etwas mehr als einhundert Jahre schriftlich belegte karolingische Königshof zuvor schon als agilolfingischer Herzogshof existierte, da Karl für die Abhaltung eines Sendbotengerichts kurz nach 788 wohl auf älteren Fiskalbesitz zurückgriff. Somit ergeben sich in Hinblick auf die Besitzgeschichte des Hofes drei abgrenzbare Zeiträume: Eine postulierte agilolfingische Phase vor 788, eine etwa hundert Jahre lange karolingische sowie die Salzburger Phase, die bis 1498 andauerte.
Archäologische Forschungsgeschichte in Altenerding – Ausgrabungen
Altenerding wird in der Archäologie hauptsächlich mit dem frühmittelalterlichen Reihengräberfeld in Verbindung gebracht, welches allerdings im Erdinger Ortsteil Klettham liegt. Nach dessen Entdeckung im Jahr 1965 wurde jedoch absichtlich eine – wenn auch leicht anachronistische – Assoziation zu Altenerding geschaffen, da dort schon immer der karolingische Königshof erschlossen wurde. Wo genau der frühmittelalterliche Kern von Erding lag, wurde jedoch erst im Jahr 2010 klarer, als eine Fundstelle mit sehr hoher frühmittelalterlicher Befunddichte am Gaugrafenweg in einer Semptschleife aufgedeckt wurde. Diese Fundstelle wurde nachfolgend innerhalb des Forschungsprojektes "Erding im Ersten Jahrtausend" sowie in mehreren Kampagnen von Forschungsgrabungen gründlich untersucht.
Nur wenige Meter südlich jener Fundstelle am Gaugrafenweg befindet sich auf der gegenüberliegenden Flussseite das sogenannte Petersbergl, das im Frühmittelalter wegen einer vermuteten Verlagerung des Flussbetts wohl auf der gleichen Semptseite lag. Dort stand bis zur Säkularisation eine kleine Kirche St. Peter, deren profanierte Reste 1967 abgerissen wurden. Im Zuge dieses Abrisses fanden rudimentäre archäologische Untersuchungen statt und im Jahre 2008 wurde direkt nebenan ein großer Teil des ehemaligen Friedhofes der Kirche aufgedeckt. Da jener Friedhof bei Analysen als frühmittelalterlich datiert wurde, ist dieser und die Altgrabungen an der Kirche mit in die Betrachtung des Königshofes eingeflossen.
Fundstelle Gaugrafenweg – Überblick und Chronologie
Insgesamt konnte am Gaugrafenweg eine früh- bis hochmittelalterliche Besiedlung mit hoher Befunddichte festgestellt werden. Da Siedlungsbefunde dieser Zeitstufen wegen der unspezifischen Keramik oft nur sehr grob datierbar sind, wurde eine große Anzahl von Radiokarbondatierungen (14C-Dat.) an Tierknochen aus den diversen Befunden durchgeführt. Durch diese ließen sich die hauptsächlichen Strukturen genauer von der späten Merowingerzeit bis ca. in die Mitte des 10. Jahrhundert datieren. Der Fundplatz am Gaugrafenweg kann jedoch weiter in einzelne archäologische Phasen unterteilt werden. Definierend ist dabei die außergewöhnliche Befestigungsanlage aus einem doppelten Grabenwerk, welche ca. in den Jahren 660/670 um den Hof errichtet und irgendwann im Laufe der ersten Hälfte des 8. Jahrhunderts einplaniert wurde. Diese Struktur teilt den Fundplatz chronologisch in Befunde, die davor bzw. danach errichtet worden sind.
Daraus ergeben sich für den Herrenhof drei frühmittelalterliche Phasen: Eine grob merowingerzeitliche vor der Errichtung der Gräben (Phase 1), die Zeit der Befestigung (Phase 2) und eine Phase der frühmittelalterlichen Befunde nachdem die Befestigungsanlage wieder einplaniert worden ist (Phase 3). Innerhalb dieser dritten Phase können einzelne Befunde eher an den Anfang und das Ende dieser Phase (3a bzw. 3b) gesetzt werden. Eine spätmittelalterliche Phase 4 bezeugt noch eine spätere vereinzelte Nachnutzung des Areals, die aber nicht mehr mit dem Herren- bzw. Königshof im Zusammenhang steht.
Für die historische Interpretation der Ergebnisse sind aus den archäologischen Phasen heraus in Verschränkung mit den Schriftquellen diverse Perioden entwickelt worden, die jeweils sprechende Bezeichnungen erhielten.
-
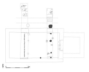
Übersicht der Grabungsergebnisse in Altenerding mit Phasen. Gaugrafenweg und Peterskirche kombiniert. (Miltz, Denkmaldaten BLfD. Kartenhintergrund: © Bayerische Vermessungsverwaltung lizenziert durch CC BY 4.0)
-
Überblick über die Chronologie in Altenerding. Historisch überlieferter Besitzstand neben der Laufzeit archäologischer Phasen der verschiedenen Grabungsareale. Inklusive interpretatorische Zeitabschnitte. (Miltz)
Phase 1 / Merowingerzeitlicher (Herren)hof
Die Zeit vor der Errichtung der Wall-Graben Anlage ist die am schlechtesten fassbare, da diese nur sehr sporadisch in den untersuchten Grabungsflächen belegt ist. Definierendes Element sind zwei Ost-West verlaufende kleine Zaungräbchen, die wahrscheinlich nacheinander jeweils den Süden einer umzäunten Hofeinheit markiert hatten. Zwei Hausgrundrisse, die zudem stratigraphisch als die ältesten Bauten innerhalb des dicht besiedelten Hofareals anzusprechen sind, scheinen in ihrer Ausrichtung direkten Bezug zu den Gräbchen zu nehmen. Genauso wie die definierenden Zaungräbchen durch die Befestigungsgräben überlagert werden, gilt dies auch für das Pfostenhaus "Grabenwerk".
Das recht wahrscheinlich hier schon errichtete "Schwellbalkenhaus I" sticht durch seine besondere Konstruktionsweise hervor, die an anderen frühmittelalterlichen Fundorten des Öfteren mit einem gehobenen sozialen Status in Verbindung gebracht wird. Abgesehen davon lässt sich aber nichts Weiteres über das Aussehen oder die Funktion dieser Hofeinheit sagen. In der Form existierte sie dort wohl bis in die Mitte des 7. Jahrhunderts; wie weit die Besiedlung bzw. der merowingerzeitliche Hof aber zurückgeht, ist beim gegenwärtigen Forschungsstand (2025) nicht auszumachen. Da die folgenden Phasen des Platzes mit dem historisch belegten Hof namens Ardeoingas/Erding in Verbindung gebracht werden können, lässt sich spekulieren, ob nicht schon jene Phase I dieser namengebende Hof gewesen sein könnte.
-
Befunde der archäologischen Phasen 1 und 2 im Herrenhof Altenerding. Späte Merowingerzeit bis ca. Mitte 8. Jahrhundert. (Miltz. Kartenhintergrund: © Bayerische Vermessungsverwaltung lizenziert durch CC BY 4.0)
-
Fragment eines Mühlsteins aus Schwellbalkenhaus II. Ursprünglich etwa 80 cm im Durchmesser. Indirekter Beleg für eine Wassermühle in der Merowingerzeit. Entweder zugehörig zum merowingerzeitlichen Hof oder zur agilolfingischen Befestigung. (Miltz)
Phase 2 / Agilolfingische Befestigung
Die erwähnte Errichtung der Befestigungsanlage kann relativ sicher in die Jahre um 660/670 datiert werden. Nicht nur wurden zwei parallellaufende Gräben ausgehoben und dahinter Wälle aufgeschüttet, nach innen hin zur Besiedlung ist eine weitere parallellaufende massive Pfostenreihe aufgestellt worden, deren konstruktive Funktion innerhalb der Befestigung aber unklar ist.
Die Fortifikation läuft mit einer Gesamtbreite von über 15 m von Nord nach Süd, bevor sie eine nahezu perfekte 90° Kurve in Richtung des heutigen Flussverlaufs nimmt. Bemerkenswerterweise folgen auch die modernen Grundstücksgrenzen noch diesem Verlauf, der mindestens bis zum Urkataster des frühen 19. Jahrhunderts verfolgt werden kann und wohl noch Grundstücksverhältnisse aus dem Mittelalter abbildet. Anhand dieser und weiterer Flurrelikte kann vorsichtig eine Gesamtgröße der frühmittelalterlichen Befestigung innerhalb einer (heutigen) Semptschleife von etwa 1,3 ha rekonstruiert werden.
-
Befunde der Befestigungsanlage des Herrenhofs Altenerding zwischen ca. 660/670 und der Mitte des 8. Jahrhunderts. Parallel verlaufende Gräben und massive Pfostenreihe. (Miltz)
-
Befunde der Befestigungsanlage des Herrenhofs Altenerding zwischen ca. 660/670 und der Mitte des 8. Jahrhunderts, eingetragen im Urkataster von 1810. In Lila markiert die Flurgrenzen von 1810, die als Flurrelikt den alten Herren- und Königshof widerspiegeln könnten. Der mit Flurnummer 32 und 33 markierte Hof wird in der mündlichen Überlieferung auch "Maierhof" genannt. (Miltz. Kartenhintergrund: © Bayerische Vermessungsverwaltung lizenziert durch CC BY 4.0)

In die Zeit der Befestigung lässt sich zudem auch das "Schwellbalkenhaus II" setzen, das als Nachfolger des schon in Phase 1 als bemerkenswert angesehenen „Haus I“ gilt. Die architektonische Ausführung in dieser Phase erscheint noch außergewöhnlicher, da das Haus je nach Rekonstruktion bis über 30 m lang gewesen ist und daher eher an ein Lager oder eine Kaserne als an ein gewöhnliches Wohnhaus erinnert. Zusammen betrachtet weist diese Phase daher eher einen militärischen Charakter auf, der sogar leicht – wenn auch anachronistisch – an ein römisches Kastell erinnert.
Da eine derartige Befestigung generell in einem herrschaftlichen Kontext zu sehen ist und der Hof in der darauffolgenden Phase ab dem Ende des 8. Jahrhunderts als Fiskalbesitz belegt ist, kann diese Rechtsqualität mit einer gewissen Wahrscheinlichkeit bereits für die Agilolfingerzeit angenommen werden. Damit wären die Erbauer bzw. Auftraggeber der Anlage – zu welcher bisher keine direkten Parallelen bekannt sind – im Umfeld der Agilolfinger zu suchen.
Phase 3 / Agilolfingischer Herzogs- und Karolingischer Königshof

Allerspätestens zur Mitte des 8. Jahrhunderts kann eine absichtliche Planierung der Befestigungsgräben festgestellt werden. Mit dieser Entfestigung des Hofes beginnt der erste Teil der Phase 3, der aus historischer Sicht noch bis 788 mit dem agilolfingischen Herzogtum in Verbindung zu bringen ist. Erst danach, als der Hof in die Hand der Karolinger überging und dort nur wenig später, vermutlich um die Jahre 791-793, das Sendbotengericht stattfand, können die archäologischen Befunde in ihrer Interpretation dem karolingischen Königshof zugeschrieben werden.
Der durch den Abbau der Befestigung frei gewordene Platz wird schon kurz danach wiederverwendet und zugebaut. Zuerst werden dort wohl nur Abfallgruben angelegt, die wegen ihrer großen Menge an Fundmaterial gut in den Anfang der Phase datiert werden können. Die aufgedeckten Baustrukturen der gesamten Phase 3 deuten in keiner Weise auf die besonderen Besitzverhältnisse hin, die für diesen Hof aus den Quellen angenommen werden können. Es sind nur sehr gewöhnliche Befunde wie einfache Pfostenbauten, die genannten Abfallgruben oder spätestens im Laufe des 9. Jahrhunderts einige Grubenhäuser zu finden. Dies mag jedoch daran liegen, dass nur die südwestliche Ecke des Hofes ausgegraben und untersucht ist.
Die archäologischen Funde vom Beginn der Phase (3a) sind in der Detailbetrachtung jedoch von sozial deutlich höherem Status, als es für eine gewöhnliche Siedlung dieser Zeit anzunehmen wäre. Vor allem die Analyse der in den Abfallgruben entsorgten Tierknochen belegen eine sehr vornehme Ernährung, die kaum aus Rind, fast nur Jungtieren, sehr viel Geflügel und speziell Wildgeflügel bestand. Auch stammen aus dieser Phase noch einzelne gehobene Sonderfunde wie das Fragment eines Tragaltars, ein Reitersporn oder eine Pfeife für das Abrichten von Hunden für die höfische Jagd.
-
Ausgewählte Funde des 8. Jahrhunderts aus dem Herrenhof Altenerding. Links: Fragment eines Tragaltars aus grünem porphyrischem Gestein. Mitte: Jagdpfeife aus einem Hundeknochen. Rechts: Reitersporn mit kegelförmigem Dorn und perlrandverziertem Ring aus Bronze. Nicht maßstabsgetreu. (Miltz)
-
Webgewichte eines Webstuhls aus einer Abfallgrube des 8. Jahrhunderts in Altenerding. (Miltz)
Fundstelle Petersberg
In direktem Zusammenhang zum agilolfingischen Herren- bzw. karolingischen Königshof am Gaugrafenweg müssen die gleichzeitigen Entwicklungen auf dem danebenliegenden Petersberg gesehen werden. Die beiden Fundplätze werden heute zwar durch die Sempt getrennt, vieles spricht jedoch dafür, dass das Hauptbett der Sempt hier im Frühmittelalter noch nicht verlief und dass beide Teile funktional zusammengehörten.
Romanische Kirche St. Peter und Vorgängerbau (Kirchenbau III und II)
Die kleine Kirche St. Peter auf dem sog. Petersbergl kann durch schriftliche Quellen lediglich bis in das 18. Jahrhundert zurückverfolgt werden. Im Zuge der Säkularisation wurde die Kirche im Jahre 1808 profaniert und der Chor abgerissen, das 7,40 m breite und 12,50 m lange Schiff in der Folge als Wohnhaus genutzt. Als das Gebäude 1967 abgerissen wurde, konnten rudimentäre archäologische Grabungen durchgeführt werden, wobei Spuren von mindestens zwei Vorgängerbauten und ein Friedhof freigelegt wurden.
Architekturgeschichtlich kann diese einfache Saalkirche (Kirche III) nur als generell „romanisch“ angesprochen werden. Unterhalb von deren Fundament kam ein älterer Estrichboden zum Vorschein, der auch außerhalb der Mauern der romanischen Kirche weiterzog. Dort konnte wiederum eine parallel laufende Ausbruchsgrube einer älteren Außenmauer sowie große Mengen Schutt aus Tuffsteinbrocken und Mörtel nachgewiesen werden. Diese Spuren belegen ein älteres und größeres Gebäude, das archäologisch wegen fehlender Funde nicht datiert werden kann (Kirche II).
-
Altenerding mit Peterskirche (hinten rechts). Hintergrund eines Tafelbilds des Altars von Hl. Blut in Klettham. Wahrscheinlich Ende 17. Jahrhundert. (Miltz)
-
Zum Wohnhaus umgebaute Peterskirche von Ostnordosten. Landkreis Erding Anfang der 1960er Jahre. Chor abgerissen; Chordurchbruch noch im Putz erkennbar. (Museum Erding. Foto: Eugen Press)
-
Übersicht Grabungsplan Petersberg. In braun Grabgruben. Im Süden Grundriss der abgerissenen Peterskirche mit Grabungsschnitten von 1967. Im Norden Plan der Grabung des Friedhofes 2008. Im Südosten Notbergung 2017. (Miltz, Kartenhintergrund: © Bayerische Vermessungsverwaltung)
-
Zusammenstellung der Bauphasen der Peterskirche auf dem Petersberg. Mögliche erste Kirche in Holzbauweise und Friedhof in Gelb. Karolingerzeitliche Tuffsteinkirche und Friedhof in Blau. Romanische Saalkirche in Grün. (Miltz)
Frühmittelalterlicher Kirchfriedhof
Zur Datierung der älteren Kirchenphasen muss der stratigraphisch dazugehörige Friedhof herangezogen werden. Die Gräber bündig an der Kirche sowie die über 100 Bestattungen die im Jahre 2008 direkt nebenan geborgen worden sind, gehörten zu einem Friedhof, der ehemals mindestens 400 Bestattungen aufwies. Es sind durchgängig nur West-Ost ausgerichtete Körperbestattungen anzutreffen, die allesamt komplett beigabenlos waren. Durch 30 einzelne 14C-Datierungen kann die Belegungszeit des Friedhofes jedoch statistisch relevant eingegrenzt werden. Drei der 30 Gräber weisen mit ihren Wahrscheinlichkeiten noch gut in die zweite Hälfte bzw. an das Ende des 7. Jahrhunderts, weswegen ein Beginn der Belegung hier spätestens anzusetzen ist, also in einer Zeit, in welcher gerade noch die großen frühmittelalterlichen Reihengräberfelder wie das in Altenerding-Klettham belegt werden. Bis auf eines der datierten Gräber, welches im 10. Jahrhundert noch ein signifikantes Signal besitzt, liegen alle anderen Bestattungen deutlich im 8. und 9. Jahrhundert.
Die Belegungszeit des Friedhofes deckt sich aus historischer Sicht also mit den agilolfingischen Perioden und der des karolingischen Königshofes. Spätestens in karolingischer Zeit kann wegen des hohen Status davon ausgegangen werden, dass ein solcher Königshof – der zudem einen Friedhof mit gewisser Größe aufweist – mit einer steinernen Kirche ausgestattet war. Dies ist ein indirektes Indiz dafür, dass der vorromanische und größere Tuffsteinbau am Petersberg (Kirche II) wahrscheinlich in die Zeit des karolingischen Königshofes, vielleicht sogar schon in die des agilolfingischen Herzogshofes zu datieren ist.
-
Radiokarbondatierte Gräber im Friedhof auf dem Petersberg. Je dunkelblauer desto älter. Datierungsspannen im 2-Sigma Bereich AD. (Miltz)
-
Bestattung aus dem Anfang oder der Mitte des 7. Jahrhunderts aus dem Friedhof auf dem Petersberg. Befund 69 mit Spuren eines Sargs. Datierungsspanne des Grabes: 95,4% Wahrscheinlichkeit zwischen 607 und 661 AD. (Editiert: Miltz, Originalfoto: Petra Haller, PLANAteam)
Erste Kirche in Holzbauweise?

Wann diese Kirche II genau errichtet wurde, kann wegen fehlender Datierungsmöglichkeiten aktuell nicht beantwortet werden. Unterhalb dieses Baus sind jedoch noch einige Pfostengruben beobachtet worden, die zu einem älteren hölzernen Gebäude rekonstruiert werden können. Aus diesen Befunden ergibt sich, dass dieser Holzbau an gleicher Stelle und mit gleicher Ausrichtung wie die ihm nachfolgenden Kirchen stand, weswegen hier unter leichtem Vorbehalt eine erste Kirchenphase in Holzbauweise (Kirche I) angenommen werden kann. Da es wie zu den anderen Kirchenphasen auch zu dieser postulierten Holzkirche keine Datierungsansätze gibt, muss die Frage der potenziellen Errichtungszeit ebenfalls offenbleiben. Insofern es sich bei den Spuren des Pfostenhauses wirklich um eine Kirche handelt, wäre aber eine Errichtung am Ende des 7. Jahrhunderts, parallel zum Beginn der Belegungszeit des Friedhofes, wahrscheinlich. Dass im angrenzenden Herrenhof etwa zeitgleich die außergewöhnliche Befestigung errichtet wird, scheint kein Zufall zu sein, da all diese Ereignisse (früher Friedhof, Kirche, Befestigung) eine herrschaftliche Komponente gemein haben und eventuell auf eine größere herrschaftliche Planung in dieser Periode hinweisen.
Um 900: Ende des Kirchfriedhofes und Ende des Königshofes

Am Petersberg wird der Friedhof wohl allerspätestens im frühen 10. Jahrhundert aufgegeben und irgendwann später wird auch die karolingische Kirche (Kirche II) abgerissen und in romanischer Form (Kirche III) kleiner wieder aufgebaut. Gleichzeitig scheinen auch im Bereich des Königshofes die Entwicklungen zu Ende zu gehen. Im Herrenhof gibt es eine größere Anzahl von sog. Grubenhäusern, die soweit datierbar allesamt um das Jahr 900 herum errichtet worden sind und zudem außergewöhnlich groß waren. (Phase 3b). Dies korreliert nahezu genau mit der Zeit, in welcher der Hof nach der Schenkung an Salzburg im Jahre 891 kein Königshof mehr war.
Mit dem Verlust von zentralörtlicher Funktion ging vermutlich auch eine Neuausrichtung des Hofes einher, die anhand der Errichtung der massiven Grubenhäuser ablesbar ist. In all diesen Befunden wurden Spuren von großen Webstühlen und verwandte Utensilien gefunden, was den Fokus auf Güter produzierendes Gewerbe widerspiegelt. Keines dieser Grubenhäuser, aber auch keine der anderen Strukturen im Herrenhof, kann jedoch über die Mitte des 10. Jahrhunderts hinaus datiert werden. Vermutlich wurde die Verwaltung des Salzburger Besitzes in dieser Periode (neu) organisiert. Dennoch, oder eventuell auch deshalb, scheint sich die ehemalige Hofeinheit daraufhin – zumindest in den untersuchten Arealen – langsam aufzulösen.
Keine bauliche Struktur, kein archäologischer Fund und kein Befund kann überzeugend in das 11. oder 12. Jahrhundert datiert werden. Substanzieller salzburgischer Besitz kann aber noch mindestens bis in das Jahr 1498 belegt werden. Damals wurde die Hofmark Altenerding erst an Sigmund von Frauenberg, Freiherrn zu Haag, und 1554 weiter an die Familie Fugger verkauft.
Ausblick nach Erding

Noch bis in das 13. Jahrhundert wird für die Siedlung im Bereich des ehemaligen Herren- und Königshofes der Name Erdingen verwendet. Erst als sich spätestens zur Mitte des Jahrhunderts keine zwei Kilometer flussabwärts die wittelsbachische Stadt mit Markt etablierte, übernimmt diese langsam den Namen Erding. Die früheste Nennung mit Präfix ist für die ältere Siedlung 1271 in der Form Altenærdingen überliefert.
Die ehemalige Bedeutung des „Mutterortes“ war jedoch noch bis in die Moderne präsent, da Altenerding noch bis ans Ende des 19. Jahrhunderts der Sitz der Pfarrei Erding gewesen ist. Erst im Jahr 1891 wird die ehemalige Filialkirche St. Johannes in der Altstadt Erdings zur Hauptkirche einer neuen Stadtpfarrei erhoben. Die Pfarrkirche Mariä Verkündigung in Altenerding geht mindestens bis in das ausgehende Spätmittelalter zurück. Zuvor wird der seelsorgerische Mittelpunkt wohl die ursprünglich zum Königshof gehörige Peterskirche gewesen sein. Als der Hof mit dem Übergang an Salzburg jedoch seine ‚öffentliche‘ Funktion verlor, wird kurz darauf auch auf dem Petersberg der Friedhof aufgeben und die Kirche St. Peter irgendwann danach auch abgerissen und in kleinerer Kubatur wieder aufgebaut. Es kann angenommen werden, dass die Marienkirche an anderer und besser erreichbarer Stelle in Altenerding sogar als direkte Nachfolgerin zur älteren Peterskirche errichtet worden ist, um ihre Seelsorge-Funktionen zu übernehmen.
Bedeutung der Ausgrabungen – Historische Aussagen
Durch verschiedene glückliche Umstände wurde In Altenerding eine relativ große Fläche in der Mitte des Altortes seit dem 10. Jahrhundert nicht überbaut und konnte in weitgehend ungestörtem Zustand untersucht werden. Der Befund erlaubt erstmals konkrete Aussagen über das Aussehen und die Struktur eines frühmittelalterlichen Herzogs- und Königshofes, worüber bis dahin – vor allem in Bayern – keine größeren Erkenntnisse vorlagen. Die Interpretation der aufgedeckten Siedlungsspuren als zentralörtlicher, herrschaftlicher Bereich – und damit auch die Identifikation mit dem durch die Schriftquellen bekannten Königshof der Karolingerzeit – ist anhand der außergewöhnlichen und aufwendigen Befestigungsanlage der späten Merowingerzeit möglich. Diese zeigt, dass Erding unter den agilolfingischen Herzögen für ein halbes Jahrhundert ab ca. 660/670 nicht nur ein Herrenhof und Verwaltungsmittelpunkt für Fiskalgut war, sondern auch eine nicht unbeträchtliche militärische Funktion besaß.
Auslöser und Hintergrund dieses militärischen Aufwandes sind unbekannt, da im 7. Jahrhundert die schriftliche Überlieferung für Bayern fast vollständig aussetzt. Die archäologisch gewonnene Erkenntnis, dass im letzten Drittel des 7. Jahrhunderts ein Herzogshof im Kernbereich der agilolfingischen Herrschaft aufwendig befestigt und im Laufe der ersten Hälfte des 8. Jahrhundert wieder entfestigt wurde, liefert wichtige Hinweise auf ereignisgeschichtliche Vorgänge, die diese Maßnahmen jeweils motivierten. Eine derart massive Befestigungsanlage, wie sie um 660/670 in Altenerding errichtet wurde mit entsprechend anzunehmender militärischer Funktion lässt an einen nicht unerheblichen Konflikthintergrund denken, wie umgekehrt die Schleifung der Anlage im 8. Jahrhundert das Ende der Konflikte oder auch die Entmachtung einer Partei, in deren Händen sich die befestigte Anlage befand, nahelegt. Ein mögliches Szenario wäre das Eingreifen Karl Martells in Bayern in den späteren 720er Jahren, wobei er das Freisinger Teilherzogtum beseitigte und Herzog Hucbert wieder in Besitz des Gesamtherzogtums versetzte.
Literatur
- Cornelia Baumann, Altlandkreis Erding (Historisches Ortsnamenbuch von Bayern, Oberbayern 3), München 1989.
- Roman Deutinger, Die Anfänge der Stadt Erding, in: Oberbayerisches Archiv 141 (2017) 8-29.
- Susanne Herleth-Krentz/Gottfried Mayr, Das Landgericht Erding (Historischer Atlas von Bayern, Teil Altbayern 58), München 1997.
- Hans Losert/Andrej Pleterski, Das frühmittelalterliche Gräberfeld von Altenerding in Oberbayern und die „Ethnogenese“ der Bajuwaren, Berlin u.a. 2003.
- Marc Miltz, Der frühmittelalterliche Herren- und Königshof von Altenerding (Erding im ersten Jahrtausend 1= Universitätsforsch. z. prähist. Archäologie 359), Bonn 2021.
- Bernd Päffgen, Erding im ersten Jahrtausend – Zielsetzung und erste Ergebnisse des Forschungsprojektes, in: Ursula Koch (Hg.), Reihengräber des frühen Mittelalters – nutzen wir doch die Quellenfülle! Beiträge der Tagung vom 17. bis 19. Februar 2015 in Mannheim, Remshalden 2016, 75-94.
- Walter Sage, Das Reihengräberfeld von Altenerding in Oberbayern. 1: Katalog der anthropologischen und archäologischen Funde und Befunde, Berlin 1984.
Quellen
- Theodor Bitterauf (Hg.), Die Traditionen des Hochstifts Freising Bd. 1 (744–926) (Quellen und Erörterungen zur bayerischen und deutschen Geschichte, NF 4), München 1905.
- Willibald Hauthaler (Hg.), Salzburger Urkundenbuch Bd. 1, Salzburg 1910.
- Die Urkunden der deutschen Karolinger III: Die Urkunden Arnolfs, hg. von Paul Kehr (MGH DD Arn), Berlin 1940.
Weiterführende Recherche
- Schlagwortsuche im Online-Katalog des Bibliotheksverbundes Bayern
- Stichwortsuche in bavarikon
- Suche in der Bayerischen Bibliographie
Externe Links
Verwandte Artikel
Hier alternative Titel für die Suchfunktion eintragen!
Empfohlene Zitierweise
Marc Miltz, Königshof Erding, publiziert am 23.05.2025; in: Historisches Lexikon Bayerns, URL: <https://www.historisches-lexikon-bayerns.de/Lexikon/Königshof_Erding> (6.03.2026)